Les infos Essentielles
En plein centre ville de Galgon, cet appartement situé dans une cette grande bâtisse de 450 m² bénéficie d’un emplacement privilégié. Toutes les commodités sont à la porte. Et Galgon offre un report avantageux vis à vis du marché Libournais.
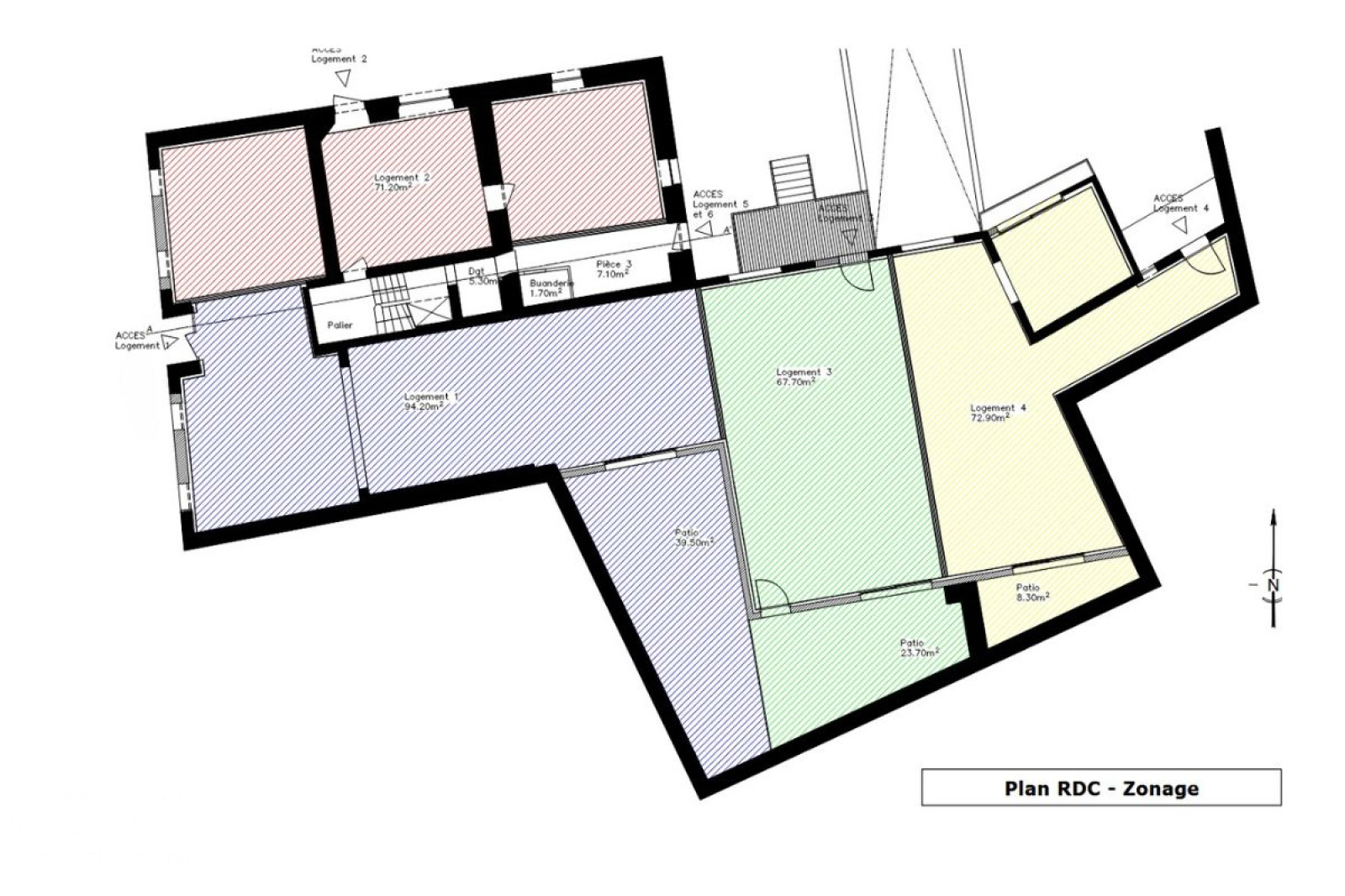
L’immeuble a été entièrement restructuré en 6 appartements dont le règlement de copropriété et la division des lots ont été finalisés.
Cet appartement loft dispose d’une place de parking privative et d’une cave attitrée. Aujourd’hui, l’appartement est vendu en l’état en tant que plateau à terminer. Il bénéficie également d’un patio de 40 m² à l’extérieur. Les réseaux intérieurs sont déjà réalisés (eau, eaux usés, compteur linky électricité). La valeur locative annuelle estimée (si transformé en T3) est autour de 15 000 € soit une rentabilité brute autour de 9 %. Vous aurez également la possibilité d’exploiter la hauteur sous plafond en créant de la surface supplémentaire en mezzanine. Vous n'aurez plus qu'à laisser libre cours à votre imagination.
Diagnostics techniques (amiante, DTG, etc.) complets disponibles. Le DPE non applicables pour les plateaux à ce stade. Aucun gros œuvre à prévoir. Le propriétaire finalise actuellement le nettoyage, le désherbage extérieur et le ménage des parties communes.
À voir très rapidement.
*Le prix indiqué constitue la première offre possible dans le cadre d’une vente interactiv.
Les informations sur les risques auxquels ce bien est exposé sont disponibles sur le site Géorisques : www.georisques.gouv.fr LAKOTA IMMOBILIER - 0661192958 - frederic.chich@lakota-immobilier.fr
Annonce proposée par un agent commercial
Localisation Du bien
-
Commerces et santé
-
Loisirs
-
Ecoles
-
Transports
-
Pratique
Les infos Energetiques
La base légale du traitement repose sur l’intérêt légitime de l'Agence / du Réseau.
Elles sont conservées jusqu'à demande de suppression et sont destinées à l'Agence / au Réseau.
Conformément à la loi « informatique et libertés », vous pouvez exercer votre droit d'accès aux données vous concernant et les faire rectifier en contactant l'Agence / le Réseau.
Si vous estimez, après avoir contacté l'Agence / le Réseau, que vos droits « Informatique et Libertés » ne sont pas respectés, vous pouvez adresser une réclamation à la CNIL.
Nous vous informons de l’existence de la liste d'opposition au démarchage téléphonique « Bloctel », sur laquelle vous pouvez vous inscrire ici : https://www.bloctel.gouv.fr
Dans le cadre de la protection des Données personnelles, nous vous invitons à ne pas inscrire de Données sensibles dans le champ de saisie libre
Ce site est protégé par reCAPTCHA, les Politiques de Confidentialité et les Conditions d'Utilisation de Google s'appliquent.
Détails des diagnostics énergétiques
Appartement à terminer
