Les infos Essentielles
En plein centre ville de Galgon, cet appartement situé dans une cette grande bâtisse de 450 m² bénéficie d’un emplacement privilégié. Toutes les commodités sont à la porte. Et Galgon offre un report avantageux vis à vis du marché Libournais.
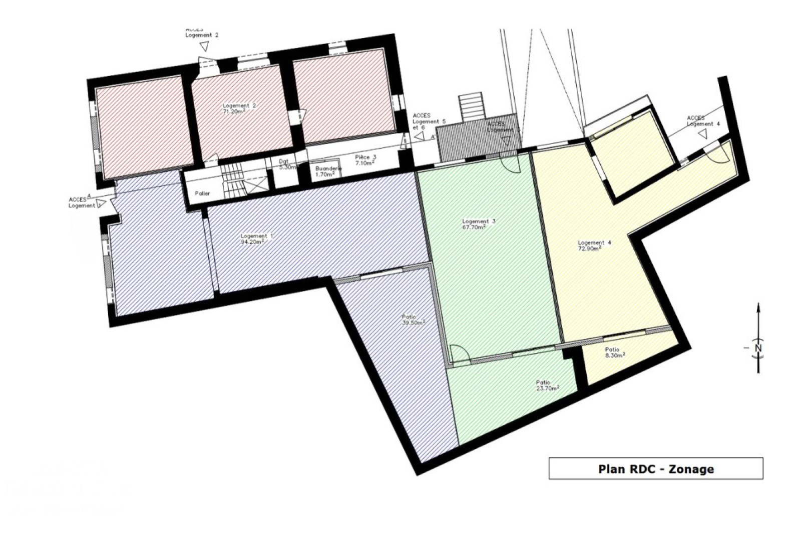
L’immeuble a été entièrement restructuré en 6 appartements dont le règlement de copropriété et la division des lots ont été finalisés.
Cet appartement T3 de 71 m² dispose d’une place de parking privative et d’une cave attitrée. Aujourd’hui, l’appartement est vendu en l’état à terminer : installation cuisine, salle de bain, sols. Les réseaux intérieurs sont déjà réalisés (eau, eaux usés, compteur linky électricité). La valeur locative annuelle estimée est autour de 11 000 € soit une rentabilité brute autour de 9 %.
Diagnostics techniques (amiante, DTG, etc.) complets disponibles. Aucun gros œuvre à prévoir. Le propriétaire finalise actuellement le nettoyage, le désherbage extérieur et le ménage des parties communes.
À voir très rapidement.
*Le prix indiqué constitue la première offre possible dans le cadre d’une vente interactiv.
Les informations sur les risques auxquels ce bien est exposé sont disponibles sur le site Géorisques : www.georisques.gouv.fr LAKOTA IMMOBILIER - 0661192958 - frederic.chich@lakota-immobilier.fr
Annonce proposée par un agent commercial
Localisation Du bien
-
Commerces et santé
-
Loisirs
-
Ecoles
-
Transports
-
Pratique
Les infos Energetiques
Montant estimé des dépenses annuelles d'énergie de ce logement pour un usage standard est compris entre 1 300 € et 1 800 € . 2021 étant l'année de référence des prix de l'énergie utilisés pour établir cette estimation.
La base légale du traitement repose sur l’intérêt légitime de l'Agence / du Réseau.
Elles sont conservées jusqu'à demande de suppression et sont destinées à l'Agence / au Réseau.
Conformément à la loi « informatique et libertés », vous pouvez exercer votre droit d'accès aux données vous concernant et les faire rectifier en contactant l'Agence / le Réseau.
Si vous estimez, après avoir contacté l'Agence / le Réseau, que vos droits « Informatique et Libertés » ne sont pas respectés, vous pouvez adresser une réclamation à la CNIL.
Nous vous informons de l’existence de la liste d'opposition au démarchage téléphonique « Bloctel », sur laquelle vous pouvez vous inscrire ici : https://www.bloctel.gouv.fr
Dans le cadre de la protection des Données personnelles, nous vous invitons à ne pas inscrire de Données sensibles dans le champ de saisie libre
Ce site est protégé par reCAPTCHA, les Politiques de Confidentialité et les Conditions d'Utilisation de Google s'appliquent.
Détails des diagnostics énergétiques
Montant estimé des dépenses annuelles d'énergie de ce logement pour un usage standard est compris entre 1 300 € et 1 800 € . 2021 étant l'année de référence des prix de l'énergie utilisés pour établir cette estimation.
